Einfamilienhaus | 19.05
Übersicht Einfamilienhäuser
Objektaufnahmen
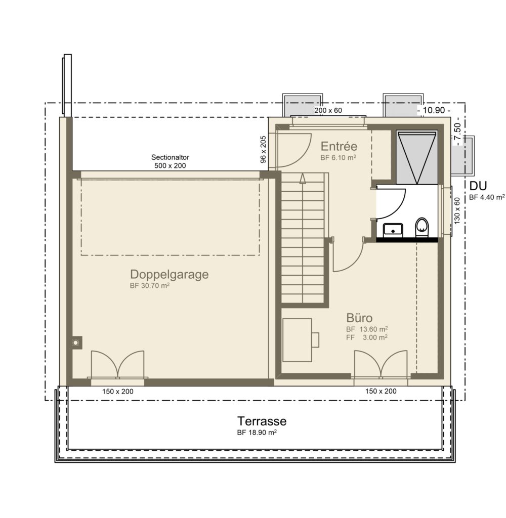
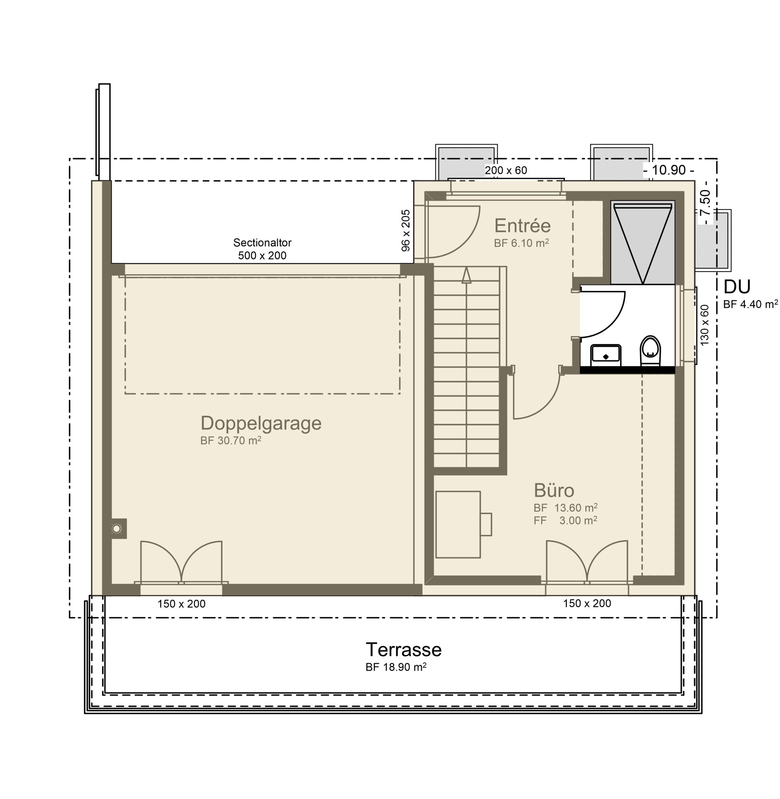
Grundrisspläne
Video zur Immobilie
Indem Sie dieses Video laden, stimmen Sie der Datenschutzrichtlinie von Youtube zu und akzeptieren die Verwendung von Cookies.
Objektdetails
Haus-ID:
19.05
Baustil:
Kubisch
Anzahl Zimmer:
5.5
Wohnfläche:
180 m²
Baujahr:
2019
Individueller Ausbau










